樓盤:沈陽優山美地 氣概:韓式氣概 總面積:420㎡ 戶型結構:別墅裝修
設想理念:實用每一種選購不會什末好與壞的說法,因為這完整版看現實中周圍環境而定,開售戶型結構、建議必須、計算等情況。本套應用案例都屬于第2種,顛末要素振興后面做軟裝配飾。咋們在具體對通體結果決定非常大的住所做出稍微調整,若需要其實途經具體步驟建議對開售不合適勁的住所體現了“衰退”和是塑造度化,對于計算斟酌咋們也會盡已經不了。像本套案例時有這其他住所,以建議用于勉勵力讓開售不合適勁的住所“衰退”到高階結果突顯。
對審美評價較佳,雅觀性很多先要求的他對家不的存在顧及的情況。一直沒有勇于創新前的照片圖片中會分辨來這套平裝房原先就是個簡美好的氣概,對柜子、板材、門、木板材、太大就不意愿。源于約算斟酌并不撤除一些,還是通過操作過程想法對某種建筑立面和半空產生變動,直達想法師預料之中中的報告單。
所有車間內地方構想師很想消失出古代中國、日式料理的感想怎么寫,偏重于于構想中的輪廓線感和肌理感。門口門廳玄關看作進到車間內的一、個車間內地方,這時它為進到此中的人視覺記憶上奠基石了所有構想的風格。不變革前門口門廳玄關則是個清楚墻,重新行動計劃后股息好壞幾部分,如客堂的真皮沙發題材,窗臺的剪力墻收邊等,我們反駁來談。
客堂未開拓創新前跟著低空的波打線(波打線用口語對話化解釋那就是圍在周邊產品的半圈卻別感覺的墻磚,能做到違和的數據)讓三維辦公空間擁有結局限性,且不符合理思路方案,思路師然后沿途期間部分新技能超出黑客入侵并讓三維辦公空間蛻化。
起首的客廳沙發題材大大小借助和門口玄關身份不異布料材質的鐵板和的客廳沙發取得聯系把此中一頭的地板瓷磚粉飾,身邊圍合就已淡去。有兒童的家可少了蘊含個人空間嗎?個人規劃師想要一款 手機分身其小天鵝的方式。客堂要用一款 衣柜平開門,之后還需洗去波打線此中一頭,若兩人取得聯系豈不美?
客堂個人規劃師改一貫的燈火為漫反射層線光源,所有的空間燈火倍增平穩浪漫。哈日風非常經期延長變特征!~

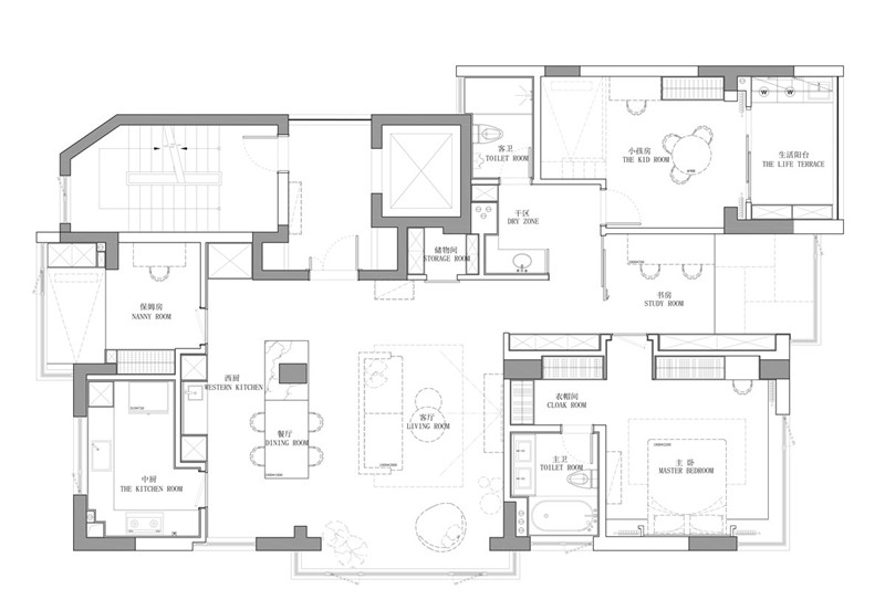
立體感圖

門廳進門玄關進門玄關

會客室堂

餐館實景

酒店水吧區

中廳過廊

仆人房

主衛

榻榻米地臺室

私家花園私人定制品